




$599,000
Est. $3,354/moKASPIAN Court, Aptos, CA 95003
About this home
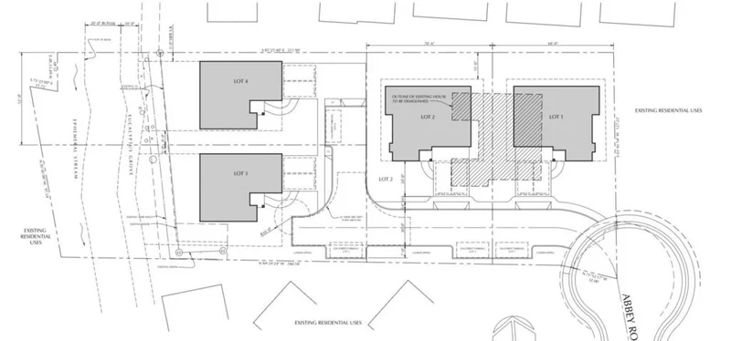
Attention Investors & Developers! This is an Incredible Opportunity! This is Lot 4 of Recently Split 4 Parcels. Preliminary Plans Are Available and Can Be Approved Quickly if Desired. Seller has Completed Laterals Including Gas. Seller Can Have Rough Driveways and Finished Pavement Completed. Buyer can Purchase Individually or Together! All Lots for Sale Now! Check Kaspian Court Listings! Highly Rated Soquel High School! Short Distance to Capitola Village, Cabrillo College, and New Brighton State Beach!
infoProperty Facts
Bathrooms
0
Lot Size
9,361 sqft
Days on Market
37
HOA Fee
N/A
MLS #
ML82029780
chairInterior Details
garageParking
deckExterior & Lot
Lot & Grounds
Lot Features
Corners Marked, Level
Sewer
Public Sewer
Water Source
Public
diversity_3Community & HOA
Association Info
Mortgage Calculator
$0
Nearby Schools
| Rating | School Name | ||
|---|---|---|---|
| No school data available for this area. | |||
Walkability
Market Insights
Estimated Value
Market Temperature
Balanced market
Avg. time on market
This is a Balanced Market. Homes are selling at a moderate pace.
Similar Homes You Might Like
Based on price, location, and features